Астана, ул. Жаhанша Досмухамедулы, 38/3
Режим работы: пн-пт: с 10:00 до 18:00
0
0
Каталог оборудования
Отмена
Фильтр
Готово
Каталог оборудования
В наличии на складе
Артикул: WA310/22NE-421FC3S
Распечатать Сохранить в PDF

Hunter WA310/22NE-421FC3S Стенд развал-схождения

Артикул: WA310/22NE-421FC3S
Датчики Hawkeye Elite
Персональный компьютер
Мобильный кабинет
4 камеры
Трехмерные мишени
2 049 348 руб
В наличии на складе

Компьютерный стенд регулировки углов установки колес Hunter WA310/20LE-421FC3S

Основные особенности:

  • Персональный компьютер (WА серия). Работает под управлением операционной системы Windows. Программное обеспечение WinAlign®. Удобные диагностика и эксплуатация. Возможность быстрого восстановления без участия сервисных представителей. Оснащен устройствами обработки видео, вывода и обработки звука. Возможность сетевого подключения. Поддерживает смену раскладки клавиатуры в процессе работы. Удобное хранение и вывод информации о заказах. Возможность выбора версии комплектации программного обеспечения. Возможность подключения дополнительного оборудования для выполнения дополнительных процедур (Romess для измерения высоты посадки МВ, CodeLink для обнуления датчика положения рулевого колеса для корректной работы системы стабилизации курсовой устойчивости, дополнительной камеры для регулировки систем ADR, ACC, LDW). Возможность ОЕМ комплектации и доукомплектации (возможность приобретения "дилерского" стенда с последующей возможностью дополнения функциями "дилерского" стенда другого автопроизводителя). Возможность выбора "глубины" автоматического сопровождения в процессе измерений и регулировок. Доступ на WebSpecs (интернет-база данных VID спецификаций автомобилей).
  • Исполнение с кабинетом мобильным, экономичным с металлическим верхом (поставляется в разобранном виде). Размеры кабинета с монитором (ВхДхШ): 1753 мм х 584 мм х 660 мм. Принтер входит в комплект.
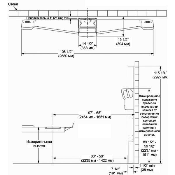
  • Стандартное напольное исполнение. Траверса видеокамер не подвижна. Подойдет для совместного использования стенда с подъемником.
  • Компенсация биений "докатыванием" автомобиля вперед:
    • Закатите автомобиль на подъемник ("смотровую яму") не доезжая до передних поворотных кругов;
    • Установите колёсные упоры и поднимите автомобиль (для подъемника);
    • Проверьте давление в шинах и найдите спецификацию автомобиля в базе данных;
    • Установите колесные мишени на колёса автомобиля;
    • Прокатите автомобиль вперед на передние поворотные круги;
    • Выньте шплинты из передних поворотных кругов и задних сдвижных пластин
  • Полная база данных спецификаций автомобилей европейского, японского и китайского рынков. Спецификации получены непосредственно от производителей.
  • Бесплатное обновление базы данных VID спецификаций автомобилей и доступ на WebSpecs в год покупки и следующий год после покупки.
Бесплатно доставим до ТК
С нами - удобно! Бесплатно доставим до ТК
Преимущества оборудования:
QuickClamp
QuickClamp

Колесные адаптеры новой конструкции, сделанные из прочного пластика пристыковываются к колесному диску, прижимаясь к нему захватом за шину. Инновационная конструкция захвата позволяет установить его практически на любое колесо за счет универсального адаптера, исключая повреждение колесного диска.

Датчики четырехкамерные HawKeye Elite
Датчики четырехкамерные HawKeye Elite

Две цифровые видеокамеры высокого разрешения. Каждая камера окружена массивом светодиодов, которые выполняют роль фотовспышки (вспыхивают с частотой около 8 раз в секунду). Каждая камера имеет два оптических модуля, каждый из которых обслуживает свою мишень, обеспечивая обзор всех колес автомобиля.

TD мишени третьего поколения
TD мишени третьего поколения

Совместимы только с 4-х камерными 3D стендами развал-схождения Hunter WinAligh® с датчиками HawkEye Elite (HS421). Легкие, небьющиеся, беспроводные трехмерные мишени высокого разрешения сделанные из высокопрочного пластика. Эти мишени не требуют аккумуляторов и проводов питания. Им не нужна периодическая калибровка на протяжении всего срока эксплуатации стенда регулировки развал-схождения). TD-мишени, компактны.

Бесплатно доставим до ТК С нами - удобно! Бесплатно доставим до ТК

Покажем оборудование в выставочном зале или устроим онлайн тур

Приглашаем вас посетить наш выставочный зал по адресу: г. Москва ул. Шоссейная, 80, стр. 1

Hunter

Нужна помощь с подбором? Поможем!

Отзывы наших клиентов

0,0
0

У этого товара еще нет отзывов. Оставьте первый отзыв

Hunter

Успейте забронировать последний в наличии станок со скидкой!

Заказать сборку и монтаж

Похожие товары:

В наличии
2 273 880руб
В наличии
Под заказ
2 247 367руб
Под заказ
новинка
Под заказ
2 205 910руб
Под заказ
В наличии
2 101 787руб
В наличии
В наличии
1 967 455руб
В наличии
новинка
Под заказ
2 247 367руб
Под заказ
новинка
Под заказ
2 146 136руб
Под заказ
новинка
Под заказ
2 153 471руб
Под заказ
новинка
Под заказ
2 381 860руб
Под заказ